Datum: 25.9.2023 (20:47) / Zobrazeno: 128x
Zastavěná plocha - 101m²
Užitná plocha - 88m²
Obytná plocha - 64m²
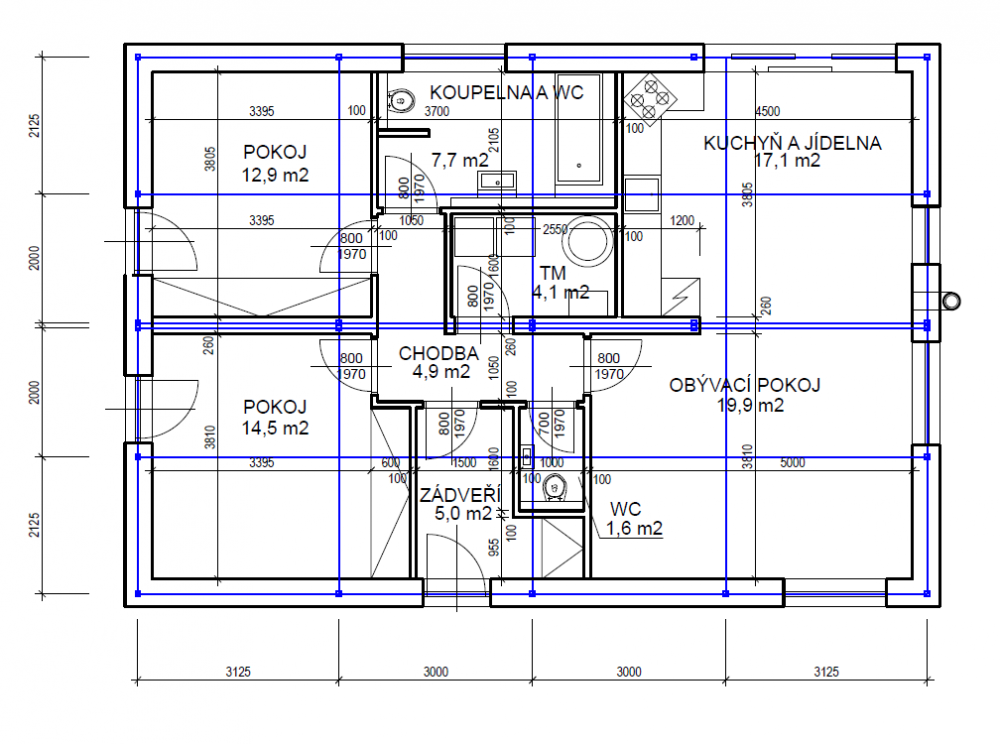
Nabízíme k výstavbě rodinný dům Tamara. Tento dům je ideální volbou pro začínající tří až čtyřčlennou rodinu.
Oba pokoje nabízí jednodílné balkonové dveře. Z obývacího pokoje jsou navrženy třídílné terasové dveře s krásným výhledem na zahradu.
Potěší Vás zde také technická místnost která je navržena přímo uprostřed domu.
V technické místnosti uvažujeme o umístění akumulační nádrže, pračky, sušičky a také jednotky TČ. Výhodou může být také zhotovení menšího prostupu pro vhazování použitého oblečení z koupelny přímo do technické místnosti, což ušetří místo v koupelně a Váš čas.
Zádveří nabízí zhotovení vestavné skříně, aniž by omezila průchozí prostor chodby.
Jsou zde také navržena dvě WC pro větší komfort. V koupelně lze na přání naprojektovat namísto vany sprchový kout.
Tento dům je možné naprojektovat také jako 4+KK jednoduchým přepažením obývacího pokoje a kuchyně.
Uvedená cena obsahuje hrubou stavbu bez DPH a zahrnuje:
- základy domu v rovinatém terénu
- konstrukci domu
- stěny a střechu domů z panelů Kingspan s izolačním jádrem Quad Core
- klempířské prvky (bez okapů)
- podlahu včetně zateplení tvrdou PUR pěnou
Jedná se o námi navržené nízkoenergetické a pasivní domy, které jsou velmi kvalitní, bezkonkurenční, moderní a velmi rychle postavené. Ke každému domu od Nás máte zajištěn projekt včetně zastupování před dotčenými orgány.
TECH DOMY s.r.o.
Email - info@techdomy.cz
| Vlastnictví | Jiné |
| Typ | Na klíč |
| Dispozice | 3 + kk |
| Užitná plocha (m2) | 88 |
| Stav objektu | Developerské projekty |
| Po rekonstrukci | Ne |
| Zařízený | Částečně |
| Vytápění | Tepelné čerpadlo |
| Energetický štítek | A - Mimořádně úsporná |
